Mieszkania w bliźniakach - Kępno, ul. Bohaterów Września
OSIEDLE BOHATERÓW – zarezerwuj bezpłatnie na 3 dni!
Szukacie Państwo wyjątkowego mieszkania dla swojej Rodziny? W dobrej lokalizacji i dobrej cenie? Proszę bardzo.
Polecamy ciekawą inwestycję - mieszkania w zabudowie bliźniaczej na Osiedlu Bohaterów w Kępnie, przy ul. Bohaterów Września. Do Rynku w Kępnie mamy 2,3 km (wg Maps Google). Do najbliższej szkoły podstawowej 1,8 km.
Do osiedla dojedziemy nowo wybudowaną szeroką asfaltową ulicą, wzdłuż której biegnie ścieżka rowerowa oraz bezpieczny chodnik.
To już trzeci etap tej samej inwestycji, w tej samej lokalizacji, ale z drobną modyfikacją. Dwa poprzednie etapyy cieszyły sie ogromną popularnością, ze względu na świetną lokalizację, bardzo dobry układ pomieszczeń oraz relację ceny do wyposażenia i standardu mieszkania.
DOJAZD: bardzo wygodny, szybki dojazd do osiedla na dwa sposoby.
- od strony basenu w Kępnie przez ulicę Osińską
- od strony Osiedla Mściwoja wygodną drogą asfaltową.
POWIERZCHNIE i CENY
Mieszkania znajdują się w domach - bliźniakach – w każdym 4 mieszkania.
Dwa na parterze, dwa na piętrze.
Powierzchnie do wyboru od 49,42m2 do 64,59m2
Ceny od 395.000 zł do 478.000 zł.
Ceny za metr kwadratowy - około 7.400 do 7.900 zł.
CO JEST DOSTĘPNE?
Na samym dole strony prezentujemy zestawienie aktualnie dostępnych mieszkań. Zestawienie jest na bieżąco aktualizowane. Zaglądaj tutaj, aby sprawdzać które mieszkania są jeszcze dostępne, które wróciły do sprzedaży, a które zostały zarezerwowane.
Jeśli interesuje Cię mieszkanie, które jest zarezerwowane, nie zniechęcaj się. Zapytaj mnie czy będzie jeszcze dostępne. Ktoś mógł je zarezerwować na chwilę, a potem wróci do sprzedaży.
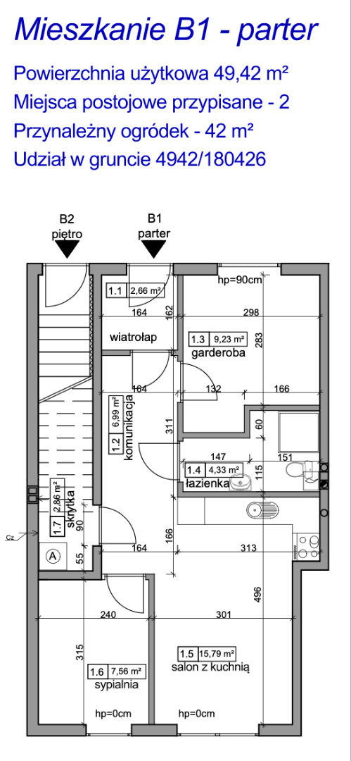
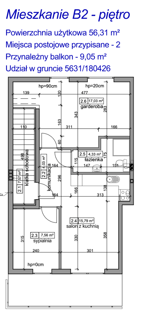
UKŁAD POMIESZCZEŃ
Wszystkie mieszkania mają naprawdę REWELACYJNY układ pomieszczeń!
Mieszkania na parterze mają następujący rozkład:
- salon z kuchnią z wyjściem do ogródka
- 2 oddzielne zamykane sypialnie (na projekcie jedna z nich jest oznaczona jako garderoba)
- łazienka (można ją powiększyć likwidując wnękę)
- skrytka, pomieszczenie gospodarcze (tu można przenieść pralkę z łazienki!)
- korytarz
- wiatrołap.
Mieszkania ma parterze mają własne ogródki o powierzchniach około 42-50m2!
Obok przykładowy układ jednego z mieszkań.
Mieszkania na piętrze mają następujący rozkład:
- klatka schodowa
- salon z kuchnią z wyjściem na balkon
- sypialnia z wyjściem na balkon
- sypialnia (oznaczona w projekcie jako garderoba)
- łazienka
- korytarz z ewentualnym wejściem na poddasze
- poddasze.
Balkony mają 1,5 m szerokości i rozciagają sie na całej długości szeregowca.
Wszystkie mieszkania na piętrze mają dodatkową powierzchnią około 25m2 do zagospodarowania na poddaszu! Ten extra bonus będzie miłym dodatkiem.
Obok przykładowy układ jednego z mieszkań.
PARKING
Do każdego mieszkania przynależą 2 miejsca parkingowe.
Na załączonym planie zagospodarowania terenu znajdziecie Państwo miejsce zlokalizowania parkingów. KLIKNIJ TUTAJ.
MEDIA: prąd, woda, gaz, kanalizacja, światłodów. Dodatkowo mieszkania będą wyposażone w rekuperację, która obniży Państwu rachunki za ogrzewanie i zapewni świeże powietrze w pomieszczeniach!
STANDARD WYKONANIA I KWESTIE TECHNICZNE
Mieszkania będą oddawane w zaawansowanym stanie deweloperskim. Standard wyposażenia - KLIKNIJ TUTAJ.
Istnieje możliwość dokonania zmian w lokalach w zakresie różnych instalacji, np. zmiana miejsca położenia pralki, dołożenie ogrzewania podłogowego, zagospodarownie poddasza, wstawienia okien dachowych, itp – do indywidualnych ustaleń z deweloperem.
KIEDY ODBIÓR?
- Planowany termin zakończenia budowy - grudzień 2026r.
- Planowany termin wydawania mieszkań - styczeń 2027r.
REZERWACJE
Mieszkania można już rezerwować. W naszym biurze zapewniamy dwie opcje rezerwacji:
- bezpłatną na 3 dni, po tym czasie rezerwacja jest anulowana lub kontynuujemy temat
- płatną, ale tylko na poziomie 1% od ceny mieszkania. Płatna rezerwacja oznacza zawarcie umowy rezerwacyjnej z deweloperem i wycofanie wybranego mieszkania z oferty. Rezerwacja płatna jest przelewem, po podpisaniu umowy rezerwacyjnej.
Kolejnym krok to spotkanie z deweloperem u notariusza w celu zawarcia umowy deweloperskiej, w której będą podane transze płatności dla dewelopera. Ponieważ sprzedaż mieszkań prowadzona jest w oparciu o rachunek powierniczy – zostanie dla Państwa utworzony indywidualny rachunek w banku, na który należy dokonywać wpłat poszczególnych transz. Deweloper może wypłacić wpłacone przez Państwa pieniądze, dopiero po sprawdzeniu przez bank, że dany etap budowy został zrealizowany.
PLANOWANE TRANSZE
- I transza – 40% do dnia 31.03.2026r.
- II transza – 20% do dnia 31.05.2026r.
- III transza – 20% do dnia 31.07.2026r.
- IV transza – 10% do dnia 31.09.2026r.
- V transza – 10% do dnia 30.11.2026r.
STAN PRAWNY MIESZKANIA: samodzielny lokal mieszkalny z udziałem w częściach wspólnych i udziałem w gruncie. Możliwość nabycia przez obcokrajowców.
POTRZEBNY DOBRY KREDYT?
Jeśli potrzebujcie Państwo dobrej oferty kredytowej oraz doradcy, który będzie z Wami na każdym etapie – zapraszamy na bezpłatną konsultację – sprawdzimy zdolność kredytową w wielu bankach oraz przedstawimy najlepszą w danym momencie ofertę kredytową dopasowaną do Państwa indywidualnej sytuacji.
KONTAKT
Zapraszam do oglądania i rezerwacji. A może najpierw napijemy się w biurze dobrej kawy i omówimy szczegóły?
MultiHome.pl Kępno, ul. Sportowa 18 (naprzeciwko basenu). Pod biurem bezpłatny wygodny parking. Zawsze jest wolne miejsce.
Zadzwoń i wybierz swoje mieszkanie.
Dominika Stryj 609 00 88 88
Podane informacje nie stanowią oferty w rozumieniu art. 66 i następnych Kodeksu Cywilnego. Dane dotyczące nieruchomości zostały podane przez właściciela nieruchomości. Pośrednik odpowiedzialny zawodowo za wykonanie umowy pośrednictwa: Dominika Stryj (licencja nr: 6250).
Lokalizacja: 63-600 Kępno, ul. Bohaterów Września (obok numeru 44a)
BLIŹNIAK A-B
| Pow. mieszkania | Pokoje | Taras/Balkon | Ogród | Cena | Rata | Status | Do pobrania | Kontakt | |
|---|---|---|---|---|---|---|---|---|---|
| Parter | |||||||||
| Mieszkanie A1 | 53,37 m² | 3 | - | 47,00 m² | - | - | Zarezerwowane | Rzut pomieszczeń | |
| Mieszkanie B1 | 49,42 m² | 3 | - | 42,00 m² | - | - | Zarezerwowane | Rzut pomieszczeń | |
| Piętro 1 | |||||||||
| Mieszkanie A2 | 60,25 m² | 3 | 10,85 m² | - | - | - | Zarezerwowane | Rzut pomieszczeń | |
| Mieszkanie B2 | 56,31 m² | 3 | 9,05 m² | - | - | - | Zarezerwowane | Rzut pomieszczeń | |
BLIŹNIAK C-D
| Pow. mieszkania | Pokoje | Taras/Balkon | Ogród | Cena | Rata | Status | Do pobrania | Kontakt | |
|---|---|---|---|---|---|---|---|---|---|
| Parter | |||||||||
| Mieszkanie C1 | 53,37 m² | 3 | - | 50,00 m² | - | - | Zarezerwowane | Rzut pomieszczeń | |
| Mieszkanie D1 | 49,42 m² | 3 | - | 42,00 m² | - | - | Zarezerwowane | Rzut pomieszczeń | |
| Piętro 1 | |||||||||
| Mieszkanie C2 | 60,25 m² | 3 | 10,85 m² | - | - | - | Zarezerwowane | Rzut pomieszczeń | |
| Mieszkanie D2 | 56,31 m² | 3 | 9,05 m² | - | 416 000,00 zł | - | Wolne | Rzut pomieszczeń | Kontakt |
BLIŹNIAK E-F
| Pow. mieszkania | Pokoje | Taras/Balkon | Ogród | Cena | Rata | Status | Do pobrania | Kontakt | |
|---|---|---|---|---|---|---|---|---|---|
| Parter | |||||||||
| Mieszkanie E1 | 53,37 m² | 3 | - | 50,00 m² | - | - | Zarezerwowane | Rzut pomieszczeń | |
| Mieszkanie F1 | 49,42 m² | 3 | - | 42,00 m² | - | - | Zarezerwowane | Rzut pomieszczeń | |
| Piętro 1 | |||||||||
| Mieszkanie E2 | 60,25 m² | 3 | 10,85 m² | - | 446 000,00 zł | - | Wolne | Rzut pomieszczeń | Kontakt |
| Mieszkanie F2 | 56,31 m² | 3 | 9,05 m² | - | 416 000,00 zł | - | Wolne | Rzut pomieszczeń | Kontakt |
BLIŹNIAK G-H
| Pow. mieszkania | Pokoje | Taras/Balkon | Ogród | Cena | Rata | Status | Do pobrania | Kontakt | |
|---|---|---|---|---|---|---|---|---|---|
| Parter | |||||||||
| Mieszkanie G1 | 57,45 m² | 3 | - | 45,00 m² | - | - | Zarezerwowane | Rzut pomieszczeń | |
| Mieszkanie H1 | 57,45 m² | 3 | - | 42,00 m² | - | - | Zarezerwowane | Rzut pomieszczeń | |
| Piętro 1 | |||||||||
| Mieszkanie G2 | 64,59 m² | 3 | 10,41 m² | - | 478 000,00 zł | - | Wolne | Rzut pomieszczeń | Kontakt |
| Mieszkanie H2 | 64,59 m² | 3 | 10,41 m² | - | 478 000,00 zł | - | Wolne | Rzut pomieszczeń | Kontakt |
Opiekun oferty
Dodatkowych informacji dotyczących oferty udzieli: